Шесть типологий вилл в Котово

Шесть домов от 80 до 210 м² с одним общим условием: большие окна на улицу, панорамное остекление во двор и без потери приватности.
Галерея



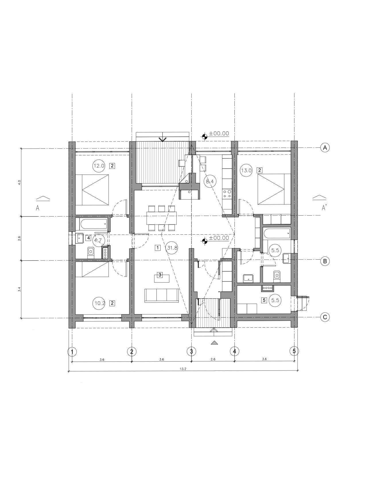
Чертежи




Описание
Двусторонняя ориентация
Периметральная конфигурация мастерплана Котово создаёт для каждого дома две принципиально разные стороны. Внешний фасад обращён к улице или парку: это публичная сторона, источник дальнего вида. Внутренний фасад выходит в закрытый двор кластера, в ближнее пространство, принадлежащее только жителям.
Оба фасада получили крупное остекление, но с разной степенью открытости. На уличном фасаде большие окна дают свет и дальний вид, сохраняя дистанцию от прохожих. Дворовый фасад решён панорамным остеклением, которое раскрывает гостиную и террасу в сторону закрытого двора кластера.
Такое решение нарушает привычную логику малоэтажного жилья, где панорамные окна открываются либо в частный сад, либо на улицу, но не в коллективное пространство соседей. Здесь оно работает потому, что двор кластера принадлежит ограниченному кругу домохозяйств: взгляд сквозь стекло не анонимен.
Боковые фасады глухие. Исключение составляют фрамужные окна в помещениях, где нужен свет или проветривание без визуального контакта: санузлы, подсобные зоны. Такие проёмы расположены выше уровня человеческого роста и обеспечивают воздухообмен, не открывая интерьер взгляду соседа. Глухой торец — стандартное решение в плотной периметральной застройке: именно так устроены боковые стены в европейских таунхаусах, где смежные дома стоят вплотную или с минимальным отступом.
Прецедент такого решения — японские1 machiya, городские таунхаусы Киото, где узкий дом раскрывается внутренним садом на тыльной стороне при глухом или сдержанном уличном фасаде. В виллах Котово логика обратная: оба фасада открыты, приватность обеспечивается не закрытостью, а геометрией застройки.
Терраса как соединительный элемент
Терраса, выходящая во внутренний двор, решает конкретную задачу перехода: из гостиной на открытый воздух без изменения режима пространства. Это не отдельное функциональное помещение, а продолжение гостиной с изменённым кровельным покрытием.
Прямой выход из гостиной на террасу закрепился как стандарт в скандинавской и нидерландской жилой архитектуре с 1960-х годов. Хрестоматийный пример — массовые2 квартиры Алвара Аалто в Хяменлинне (1955): каждая единица получает выход на приватный балкон именно через жилую зону, а не через кухню или прихожую. В виллах Котово этот принцип перенесён в формат частного дома с большей площадью контакта indoor/outdoor.
Терраса ориентирована во двор, а не на улицу. Это фиксирует социальную иерархию пространств: двор служит местом встречи с соседями, уличный фасад остаётся границей с внешним миром. Повседневная жизнь разворачивается внутрь кластера.
Диапазон площадей и типологическое разнообразие
Шесть типологий перекрывают диапазон от 80 до 210 м², разброс в 2,6 раза. Это значительная вариация для одного посёлка: меньшие дома (80–100 м²) функционально ближе к европейскому cottage или bungalow, большие (180–210 м²) ближе к полноценной вилле с зонированием на приватную и общественную части.
При этом все шесть типологий подчиняются одному мастерплановому правилу периметральной расстановки. Геометрия участка и ориентация фасадов фиксированы: типологии варьируют площадь, количество уровней и внутреннее зонирование, но не положение в структуре кластера.
Приватность через геометрию, не через ограждение
Главный проектный тезис — конфиденциальность без закрытости — требует технического объяснения. Стандартный способ обеспечить приватность в коттеджном доме: глухой забор, минимальные окна на соседей, ориентация всех жилых помещений внутрь участка. Панорамное остекление с дворовой стороны этому противоречит напрямую.
Решение лежит не в материале ограждения, а в геометрии взгляда. Уличный фасад с большими окнами даёт дальний вид без прямого визуального контакта с прохожими. Дворовый фасад раскрывается панорамным остеклением туда, где смотрят только те, с кем житель уже разделяет территорию. Приватность здесь — функция пространственного устройства, а не физического барьера.
Такой подход соответствует тому, что Ян Гейл называет «мягкими границами»: полупрозрачные3 переходные зоны между частным и общим, которые обеспечивают контакт без вторжения.4
Шесть типологий вилл Котово решают задачу, которая в массовом малоэтажном строительстве обычно даже не формулируется: как сделать дом открытым одновременно двум разным пространствам, публичному и коллективному, и при этом не потерять ощущения уединённости. Ответ оказывается не конструктивным, а геометрическим: он зашит в мастерплан раньше, чем спроектирован первый дом.
Footnotes
-
Morse, E. The Traditional Japanese House. Tuttle Publishing, 2005. О типологии machiya и принципах ориентации жилых пространств в традиционной японской застройке. ↩ ↩
-
Quantrill, M. Alvar Aalto: A Critical Study. Schocken Books, 1983. Анализ жилых комплексов Аалто и принципов организации перехода между внутренним и внешним пространством. ↩ ↩
-
Gehl, J. Life Between Buildings: Using Public Space. Island Press, 2011. Концепция мягких границ как инструмента создания переходных зон между частным и публичным пространством. ↩ ↩