- Коллекция ковров «Однажды прошлым летом»
- Художественное оформление строительного ограждения дома K7/11
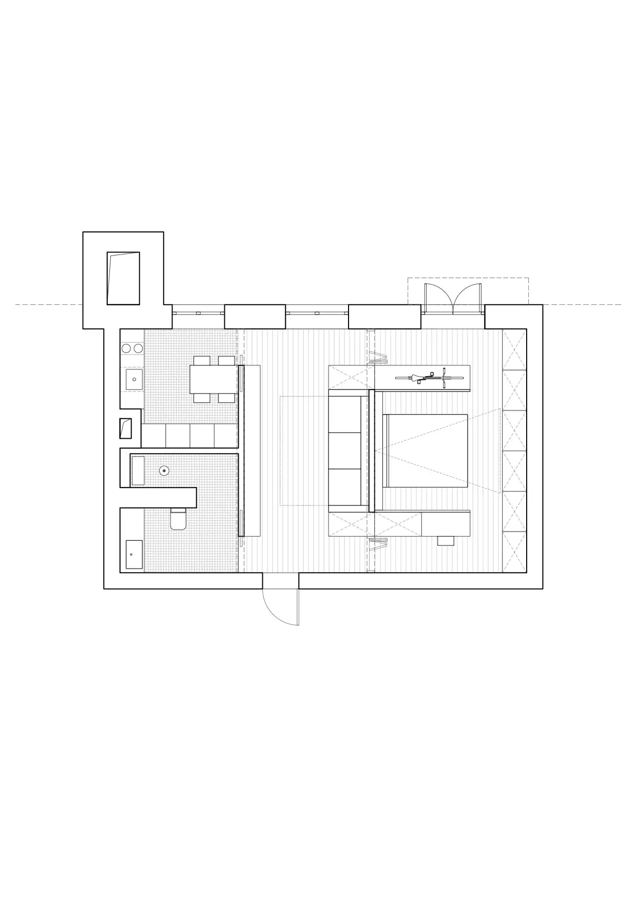
- Квартира в сталинском доме на Профсоюзной
- Набор фарфоровой посуды "В лучах Пресни"
- Лукбук. Подсвечники от локальных брендов
- Лукбук. Ёлочные игрушки локальных брендов
- Кресло "Родненький"
- Лукбук. Ширмы локальных брендов и винтажных магазинов
- Бьюти-студия «GRS Space»
- Интерьер загородного дома в деревне Пестово
- Квартира в историческом доме на Чистых прудах
- Жилой дом «Амстердам» в Зиларт
- Квартира на первом этаже на Кропоткинской
- Угловая квартира 150 м² для семьи с двумя детьми
- Квартира с библиотекой и кабинетом для режиссёра
- Квартира 52 м² с панорамой на Москву на Земляном валу
- Концепция развития территорий озёр Кабан
- Учебные лаборатории Политехнического музея
- Научная библиотека Политехнического музея
- Шесть типологий вилл в Котово
- Мастерплан Котово
- Библиотека им. Ф.М.Достоевского
- Библиотека Проспект
mashaxpasha
Портфолио архитектурной и интерьерной студии с проектами в области архитектуры, интерьеров, объектов и мастерпланов, собранное как ясный визуальный архив с кратким контекстом и удобной навигацией.
mashaxpasha объединяет архитектуру, интерьеры, объекты и исследовательские материалы в одной двуязычной структуре. Здесь собраны избранные проекты, чертежи, аналитические материалы и страницы студии, чтобы каждая публикация работала и как кейс-портфолио, и как удобная точка входа в архив.