Бьюти-студия «GRS Space»

Блогер с аудиторией, которая следит за её образом жизни онлайн, открывает студию: не как бизнес в обычном смысле, а как офлайн-версию собственного контента.
Галерея





Чертежи







Описание
Блог как техническое задание
Валерия Симакова ведёт блог о макияже, здоровом питании и осознанном потреблении. Матча из Японии, раздельный сбор мусора, макияж как способ подчеркнуть внешность, не изменить её — всё это существовало в её онлайн-пространстве раньше, чем появилась студия. Когда она решила открыть GRS Space, смысловое содержание пространства уже существовало — оставалось перевести его в архитектурное задание.
Это редкая исходная позиция для проектирования коммерческого помещения. Обычно бьюти-студии строятся от образа: мягкость, розовый, зеркала, неоновые надписи. Здесь образ уже существовал — и он был про другое.
Из этого возникло конкретное задание: студия без деления на мужское и женское, где маникюр делают все. Минимум новых материалов. Переработанное и восстановленное — там, где это возможно.
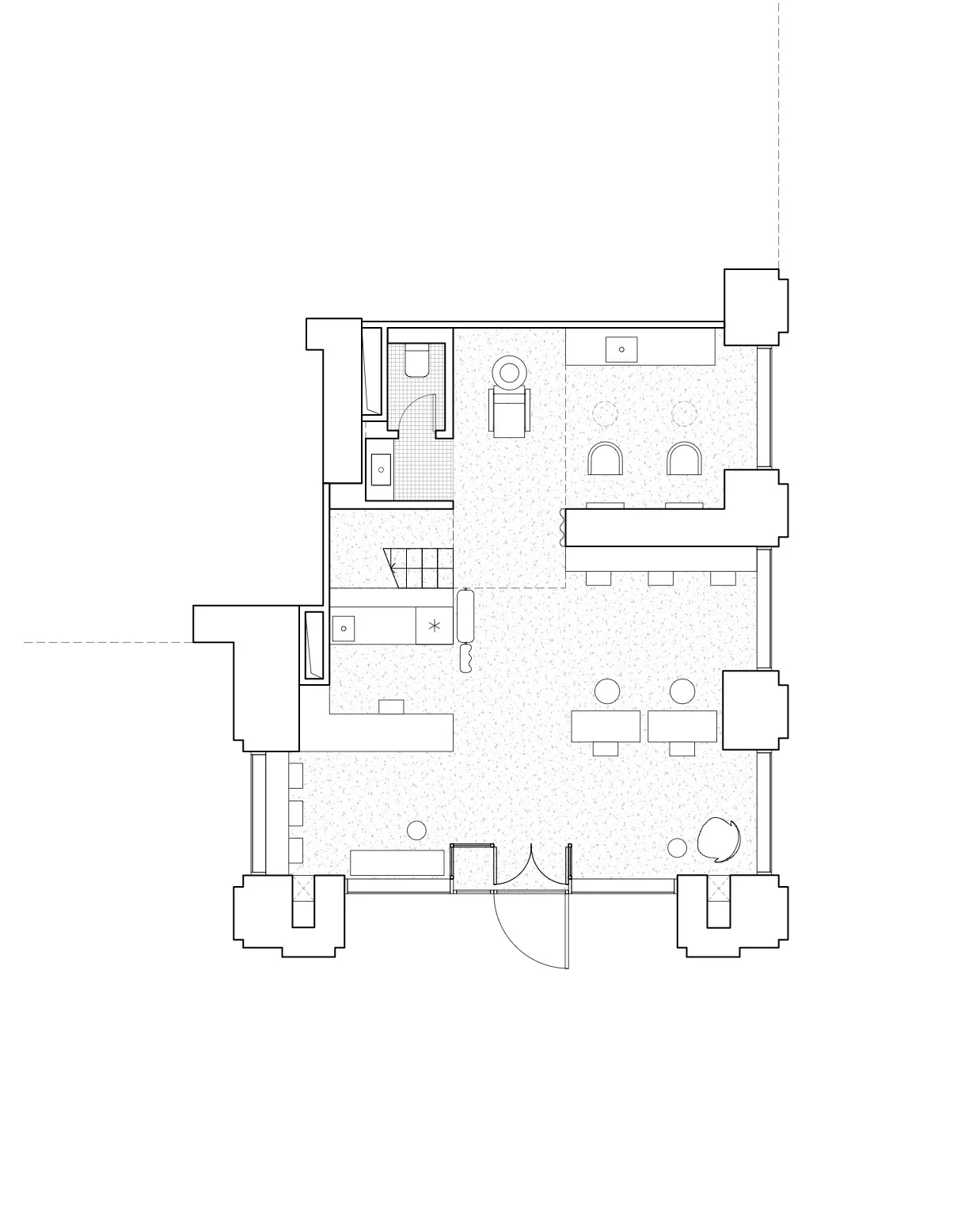
Открытое пространство без лишних границ
Все рабочие зоны студии — ресепшен, маникюр, укладка, кафе — существуют в едином пространстве без перегородок. Хранение убрано над зоной санузла, единственным выделенным блоком. Минимум отделочных материалов: никаких декоративных панелей и подвесных конструкций, которые создавали бы ощущение завершённости за счёт объёма.
Открытый план работает на заявленную нейтральность. Когда человек входит, он видит студию целиком и не выбирает между «своей» и «чужой» зоной. Изолированные кабинеты создают именно то разделение, от которого здесь отказались.
Та же логика действует в отделке. Фактурный бетонный потолок с открытыми коммуникациями оставлен как есть — он контрастирует с гладким светлым полом и держит высоту помещения без дополнительных объёмов. Неровная поверхность здесь не дефект, а часть материальной честности пространства.
200 кг крышек от бутылок
Панели для зоны рецепции изготовлены компанией 99Recycle1 из переработанного пластика. Оттенок подбирался вручную через несколько тестов: нужно было найти точное соотношение зелёного и белого. На производство панелей для одной только рецепции ушло около 200 кг старых бутылочных крышек.
Барные стулья и скамью в зоне кафе сделала компания Eburet2 — специально для этого проекта был разработан оригинальный оттенок бирюзового. Материал обеих марок неоднороден по фактуре: гранулы разного происхождения дают пятнистую поверхность, которую невозможно воспроизвести из первичного сырья.
Кресла с историей
Парикмахерские кресла и кресло с интегрированной мойкой для мытья головы куплены у закрывшегося салона красоты. Их восстановили и перетянули экокожей под цвет интерьера. Логика та же, что с пластиком: не производить новое там, где хорошее старое уже существует. Перетяжка вписала кресла в палитру студии, не стерев их происхождение.
Детали, которые решают конкретные задачи
На дверях санузла установлены локтевые ручки итальянского производства. Разработанные для маломобильных пользователей, они открываются предплечьем и не требуют захвата кистью. В студии, где клиенты выходят с только что сделанным маникюром, это прямая функция, а не адаптационная мера. Белые ручки размещены на ярком фоне — чтобы считывались без поиска.
Рядом с кабинкой туалета установлена зелёная лампочка как индикатор занятости. Она работает как навигационный знак: посетитель видит статус с расстояния, администратор не ведёт каждого лично.
Вместо бумажных полотенец — сушилки для рук. Одноразовые листовые полотенца для общественных мест производятся преимущественно из первичной3 целлюлозы и образуют значительный поток мусора. Сушилка исключает его полностью.
В пространстве есть несколько предметов с авторским почерком: зеркало с волнообразной подсветкой, вешалка и стеллаж с характерной формой волны. В интерьере, где большинство поверхностей нейтральны, эти предметы задают масштаб и не конкурируют с рабочим оборудованием.
Из онлайна в офлайн
GRS Space — это случай, когда медиаобраз предшествует пространству и диктует ему условия. Блог Леры Симаковой существовал раньше студии, и студия строилась не как отдельный объект, а как его продолжение в другой среде. Раздельный сбор мусора, матча, маникюр для всех — всё это было частью онлайн-идентичности до того, как стало частью интерьера.
Такой порядок вещей меняет критерий оценки пространства. Вопрос не в том, красиво ли получилось, а в том, узнаёт ли постоянный читатель блога своё пространство, когда входит внутрь.
Footnotes
-
99Recycle — производитель изделий из переработанного пластика. 99recycle.ru ↩
-
Eburet — производитель мебели из переработанного пластика, работает с кастомными оттенками под проект. eburet.ru ↩
-
По данным организации TAPPI (Technical Association of the Pulp and Paper Industry), одноразовые листовые бумажные полотенца имеют значительно больший углеродный след по сравнению с электросушилками при долгосрочном использовании. tappi.org ↩
Процесс

























