Квартира в историческом доме на Чистых прудах

Квартира в доме начала XX века, где советский ремонт уничтожил все подлинное: о том, как работает историзм без стилизации.
Галерея





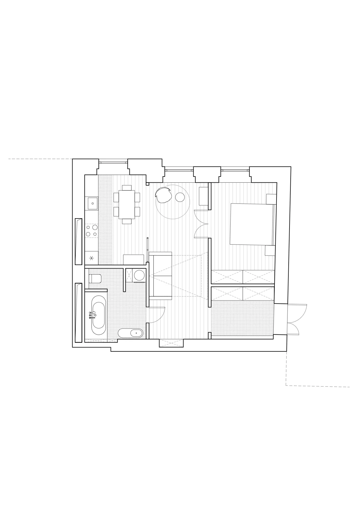
Чертежи

Описание
Ремонт 1990-х как точка отсчёта
Московские доходные дома начала XX века строились с деревянными перекрытиями, толстыми кирпичными стенами и анфиладной планировкой. К 1990-м большинство таких квартир прошло несколько волн переделок: советские перепланировки, замена столярки, поздние ремонты с выравниванием всего под штукатурку или гипсокартон. В этой квартире именно ремонт девяностых уничтожил последние исторические детали.
Работать с такой ситуацией можно двумя способами: либо воссоздавать утраченное по аналогам, либо выстраивать интерьер заново — используя не образы эпохи, а её конструктивную логику. Здесь выбран второй путь. Ни одна деталь не имитирует то, чего уже нет. Вместо этого каждый элемент отсылает к конкретному техническому или планировочному принципу, реально существовавшему в подобных домах.
Кирпичная кладка, бетонная плита, деревянные перекрытия: три материала с разной логикой
Дом относится к типу с деревянными перекрытиями. Квартира расположена на последнем этаже, что и объясняет присутствие бетонной плиты над кухней: это не перекрытие между этажами, а, вероятно, элемент позднего усиления или надстройки. Плиту оставили открытой — её фактура визуально отделяет кухонную зону от остального пространства без физической границы.
Деревянное перекрытие над гостиной закрыто гипсокартоном с встроенными светильниками. Причина прагматическая: неровная поверхность дерева плохо поддаётся штукатурке. Это решение фиксирует предел, до которого доходит принцип «аутентичности» в реальном строительном процессе.
Три фрагмента старой кирпичной кладки оставлены открытыми: над кухонным фартуком, над изголовьем кровати и в санузле. Кирпич в доходных домах начала XX века в Москве — как правило, полнотелый красный, клали на известковый раствор. При длительной эксплуатации и многослойной отделке кладка сохраняет несущую функцию, но теряет поверхностный слой. Оставленные фрагменты работают как датировочные маркеры: показывают материал конкретного исторического момента, не имитируя его.
Анфилада как пространственный принцип, не как исторический мотив
Распашные двери из гостиной в спальню обеспечивают сквозную просматриваемость через несколько помещений. Анфиладная организация пространства была характерна для московских доходных домов рубежа XIX–XX веков: она позволяла освещать внутренние комнаты через смежные и создавала пространственную глубину при компактных планах1. В данном случае принцип воспроизведён в миниатюрном масштабе — не как стилистическая цитата, а как способ связать кухню, гостиную и спальню в единую визуальную ось.
Фрамуги в ванную отсылают к советской строительной практике, когда остеклённые фрамуги над дверями обеспечивали естественное освещение санузлов, лишённых окон. Это решение нормировалось ещё СНиП 1954 года. Здесь фрамуга выполняет ту же светопроводящую функцию и одновременно становится узнаваемым элементом конкретной строительной эпохи.
Хранение в каждом свободном объёме
При потолках 3,3 м шкаф в прихожей длиной 3 м использует весь подъём: нижняя часть для повседневной одежды и обуви, верхняя для сезонного хранения, которое в квартирах с низкими потолками обычно вытесняется на антресоли или уходит в кладовку. В спальне аналогичный шкаф укорочен снизу: открытая полка и пространство для корзин разбивают сплошной фасад, который в маленькой комнате читается как монолитный блок и визуально сжимает пространство.
В ванной два независимых объёма хранения. Первый — ниша со скрытым коллектором-гребёнкой и шкафом с открытыми и закрытыми полками: открытая часть отдана косметике и парфюмерии, которые требуют постоянного доступа. Второй — отдельный шкаф под бытовую технику и химию. Ниша в гостиной занята книжным стеллажом.
На кухне верхние шкафы отсутствуют намеренно: их заменяет сервант, где хранится посуда, винный шкаф и бутылки. Это позволяет воспринимать кухню как продолжение гостиной.
Что остаётся, когда ничего не осталось
В интерьере нет ни одного элемента, который можно было бы назвать репликой. Анфилада работает, потому что связывает комнаты в визуальную ось. Фрамуга пропускает свет. Кладка показывает кладку. Бетонная плита над кухней — просто плита, которую нашли и оставили.
Именно это делает интерьер убедительным там, где стилизация проваливается: здесь нет усилия понравиться прошлому. Каждое решение обосновано функционально, а ощущение времени возникает как побочный эффект — не как цель.
Footnotes
-
Кириченко Е.И. Русская архитектура 1830–1910-х годов. М.: Искусство, 1982. С. 241–260. О пространственной организации доходных домов в России. ↩
Процесс


















