Библиотека им. Ф.М.Достоевского

Библиотека в жилом доме 1913 года на Чистопрудном бульваре: реконструкция, которая открыла закрытое пространство городу, не нарушив его тихий характер.
Галерея





Чертежи



Описание
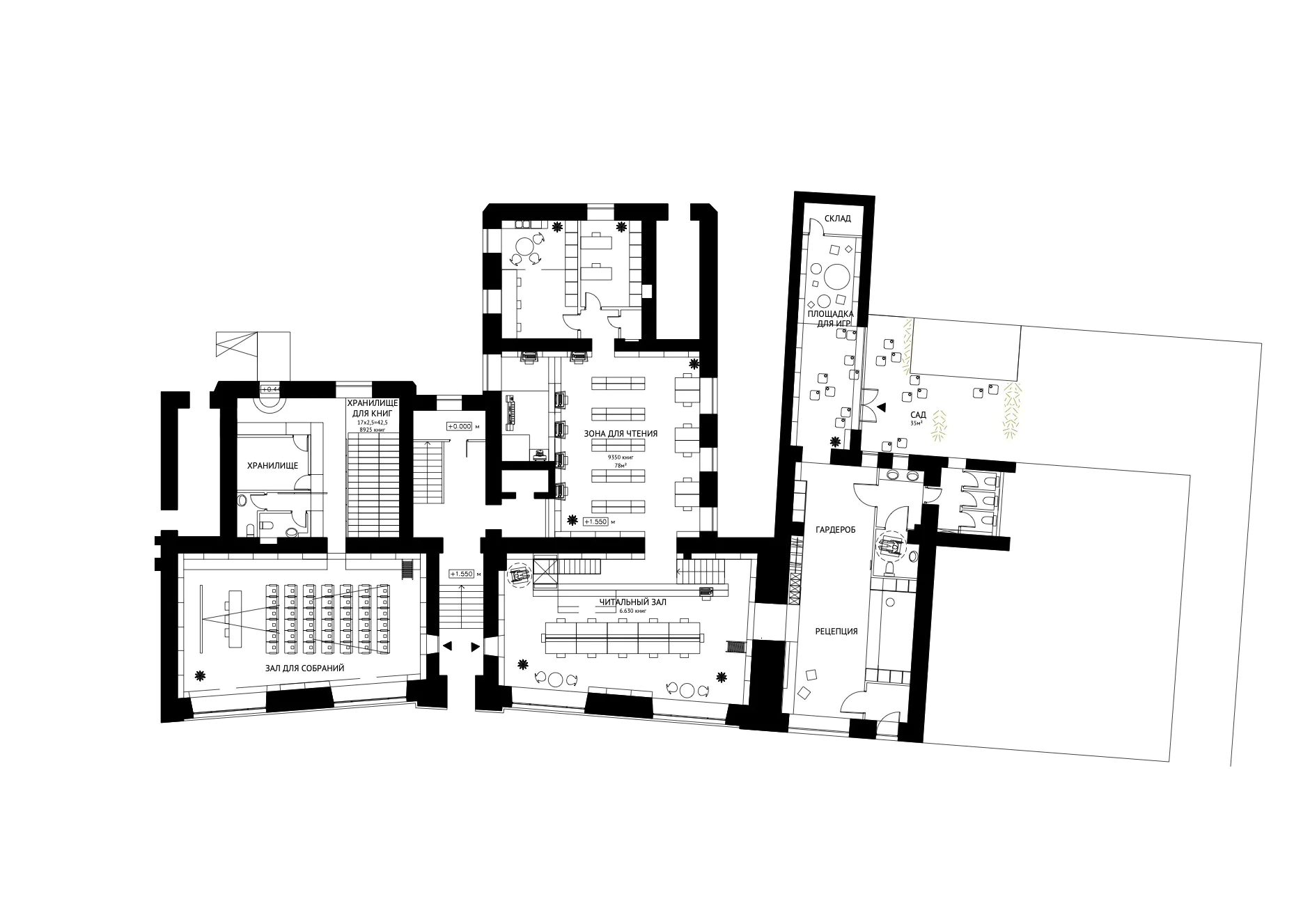
Здание и его слои
Дом на Чистопрудном бульваре относится к типовой застройке рубежа XIX–XX веков: доходный дом с богато отделанным уличным фасадом и утилитарными внутренними помещениями. Первый этаж таких зданий традиционно занимали коммерческие или общественные функции. Библиотека существовала здесь давно, но пространство оставалось закрытым: функциональная программа не выходила за рамки абонемента и читального зала, а планировка не использовала ни высоту окон, ни связь с бульваром.
Световой и визуальный контакт с бульваром
Ключевое геометрическое решение связано с витринным остеклением уличного фасада. Окна первого этажа доходного дома имеют значительную высоту, типичную для парадных коммерческих помещений эпохи. Зона у окон освобождена от стеллажей и отдана под рабочие и читальные места.
Это решение работает в двух направлениях. Изнутри читатель получает естественный свет и вид на бульвар, снижающий ощущение замкнутости, характерное для подвальных и полуподвальных библиотечных помещений. Снаружи прохожий видит людей за работой: библиотека становится видимой из городской среды. Именно эта взаимная видимость и есть механизм превращения закрытого учреждения в городской литературный салон: не декларация, а оптическое и функциональное решение.
Бульварное кольцо как тип городского пространства предполагает медленное движение, остановки, сезонное использование. Библиотека, ориентированная на этот ритм, органично встраивается в него, не конкурируя с кафе и театрами района, а дополняя их другим режимом присутствия.
Материалы и атмосфера
Проект декларирует «тёплую атмосферу» как целевое качество пространства. В архитектурном смысле это достигается выбором материалов с нейтральной теплотой тона и высоким коэффициентом светоотражения при отсутствии глянцевых поверхностей. Деревянные элементы мебели и стеллажей аккумулируют тепло естественного света, меняя восприятие в зависимости от времени суток. Стены выровнены и окрашены в белый. Белая матовая поверхность работает как рассеиватель: она усиливает естественный свет без бликов и снижает акустическое эхо, характерное для помещений с бетонными или плиточными плоскостями.
Библиотеки с высокой посещаемостью предъявляют к отделочным материалам специфические требования: напольные покрытия должны выдерживать интенсивное движение без визуального износа, мебель — сохранять геометрию при многолетней эксплуатации. Выбор материалов в сторону долговечного и нетребовательного в обслуживании — не эстетическая позиция, а инженерная. Британский стандарт BS 8300 для общественных зданий, в частности, фиксирует, что долговечность1 отделки напрямую влияет на доступность пространства: изношенные поверхности создают физические и визуальные барьеры.
Программа и городские пустоты
Понятие «программатических пустот» в тексте проекта указывает на конкретное наблюдение: в радиусе шаговой доступности от библиотеки отсутствовали тихие общественные пространства для работы и чтения. Кафе района предполагают потребление, театры — расписание, парк — сезонность и погоду. Библиотека с оцифрованным фондом, Wi-Fi и разнообразием рабочих мест закрывает спрос, который иначе не удовлетворяется.
Оцифровка коллекции меняет логику расстановки стеллажей. Когда часть фонда существует в цифровом виде, физическое хранилище сокращается, и освобождённая площадь перераспределяется в пользу рабочих мест. Это структурное изменение, а не декоративное: соотношение площади хранения к площади пользования смещается в сторону последней. Схожая трансформация происходила в библиотеке Сиэтла (архитекторы OMA / Rem Koolhaas, 2004), где принцип2 разделения фонда на физический и цифровой был заложен в саму объёмно-планировочную логику здания.
Тихое пространство как программа
Реконструкция библиотеки им. Достоевского решает задачу, которую большинство проектов публичных пространств в деловых городских районах обходит стороной: создание места для тишины и сосредоточенности рядом с интенсивной городской активностью. Не несмотря на соседство с кафе и театрами, а именно в силу этого соседства. Пространство работает как контрапункт, а не как конкурент. И этот контрапункт оказывается функцией, которую невозможно заменить никаким другим типом общественного здания.
Footnotes
-
British Standards Institution. BS 8300
«Design of an accessible and inclusive built environment». London: BSI, 2018. ↩ -
OMA / Rem Koolhaas. Seattle Central Library, 2004. Программная концепция разделения физического и цифрового фонда. https://oma.com/projects/seattle-central-library ↩
Анализ



